Beschreibung
BESCHREIBUNG
Starkes Investment direkt im Zentrum der Stadt Horn Bad-Meinberg!
Langfristige Mietverträge, architektonisch hochwertige Bauweise, ausreichend Parkplätze und eine solide Mieterstruktur suchen Ihren neuen Eigentümer.
Alle Einheiten sind im Zuge der Projektierung bereits in Wohnungs- und Teileigentum (einzelne Grundbücher) aufgeteilt, wovon eine Gewerbeeinheit bereits verkauft ist.
Das Wohn-/Geschäftshaus aus dem Jahr 1996 besteht aus zwei Hauseingängen, zwei Treppenhäuser, zwei zentralen Heizungsanlagen, vier Gewerbeeinheiten und 8 Wohnungen. Jeder Einheit sind entsprechende Parkflächen und ein separater Kellerraum zugeordnet. Darüber hinaus gibt es einen Gemeinschaftskeller, Waschküche und Fahrradkeller.
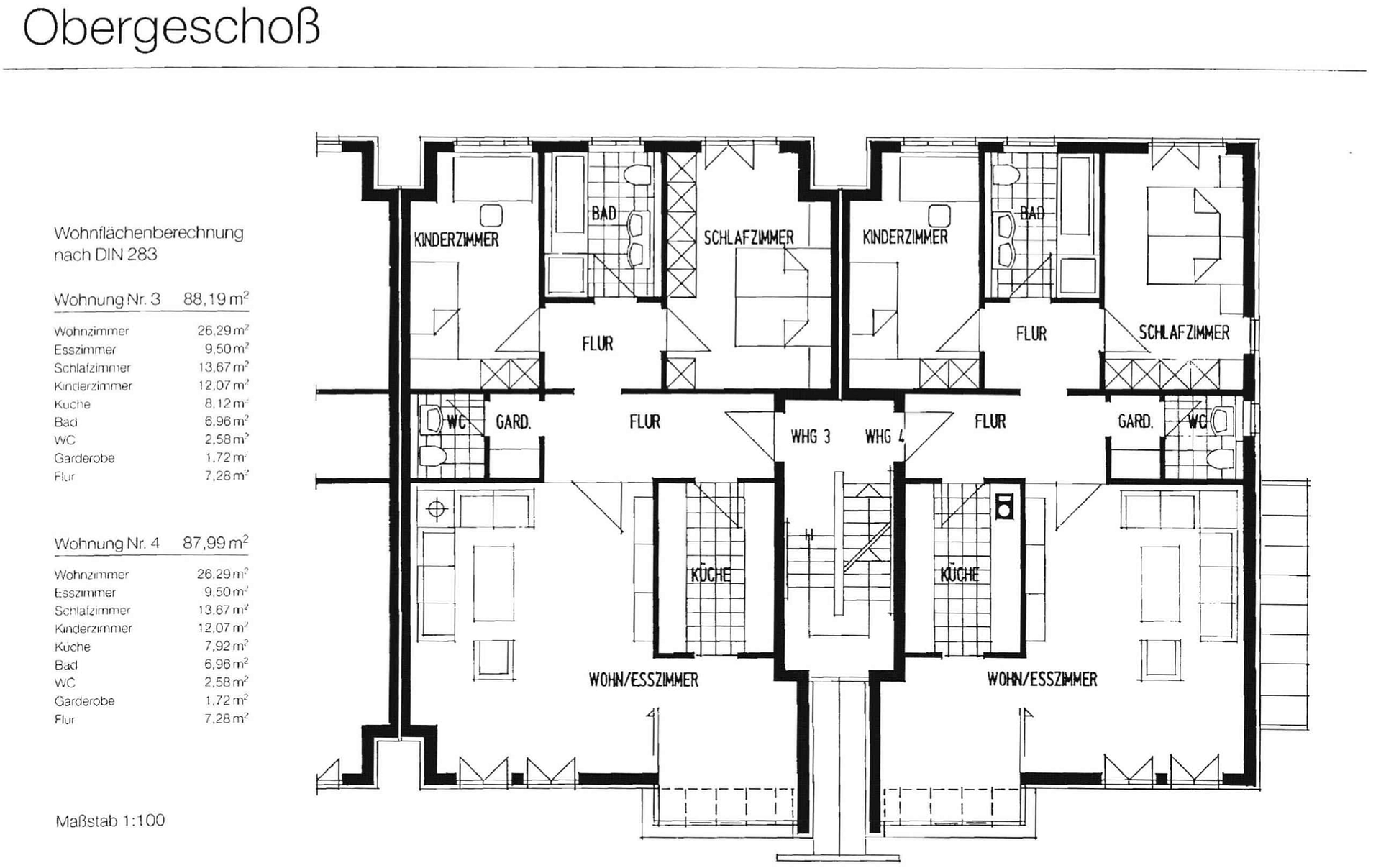
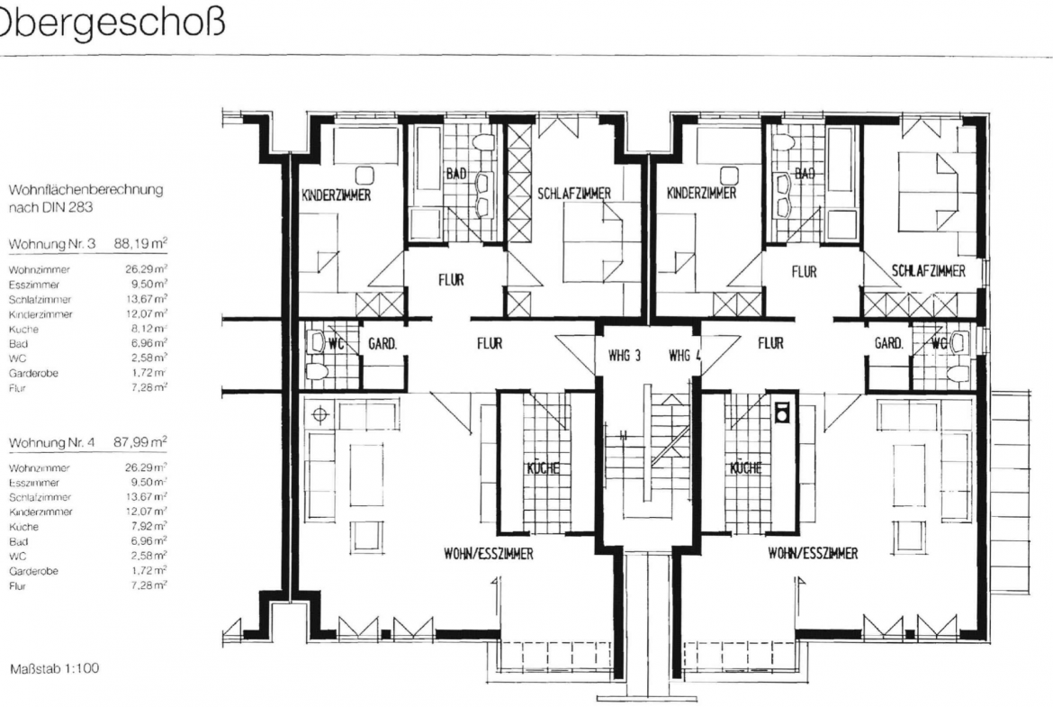
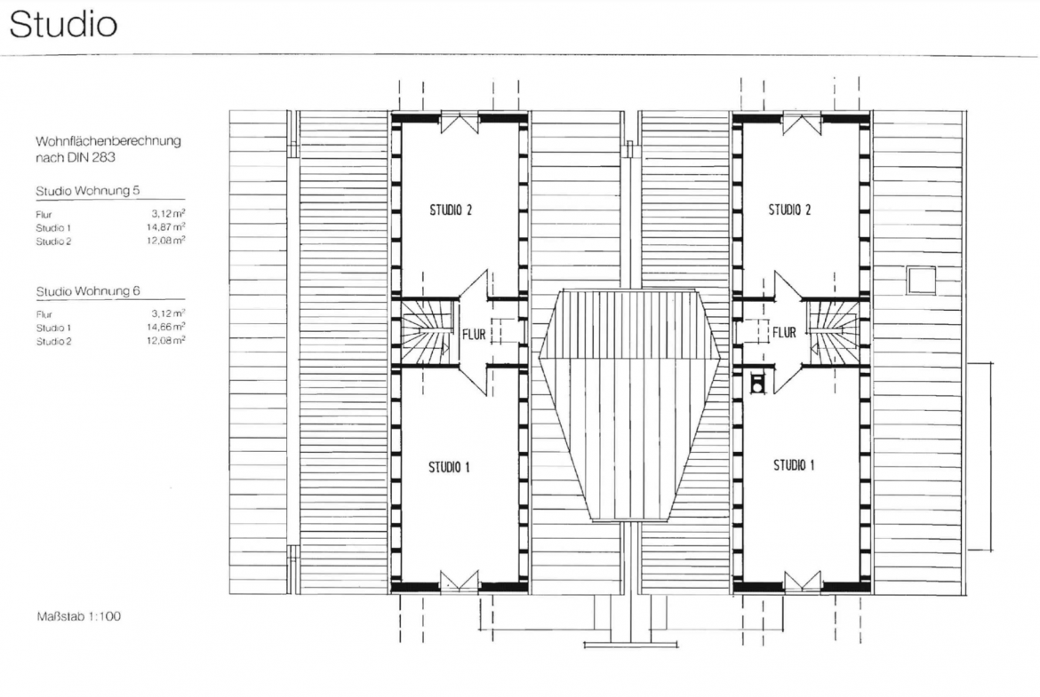
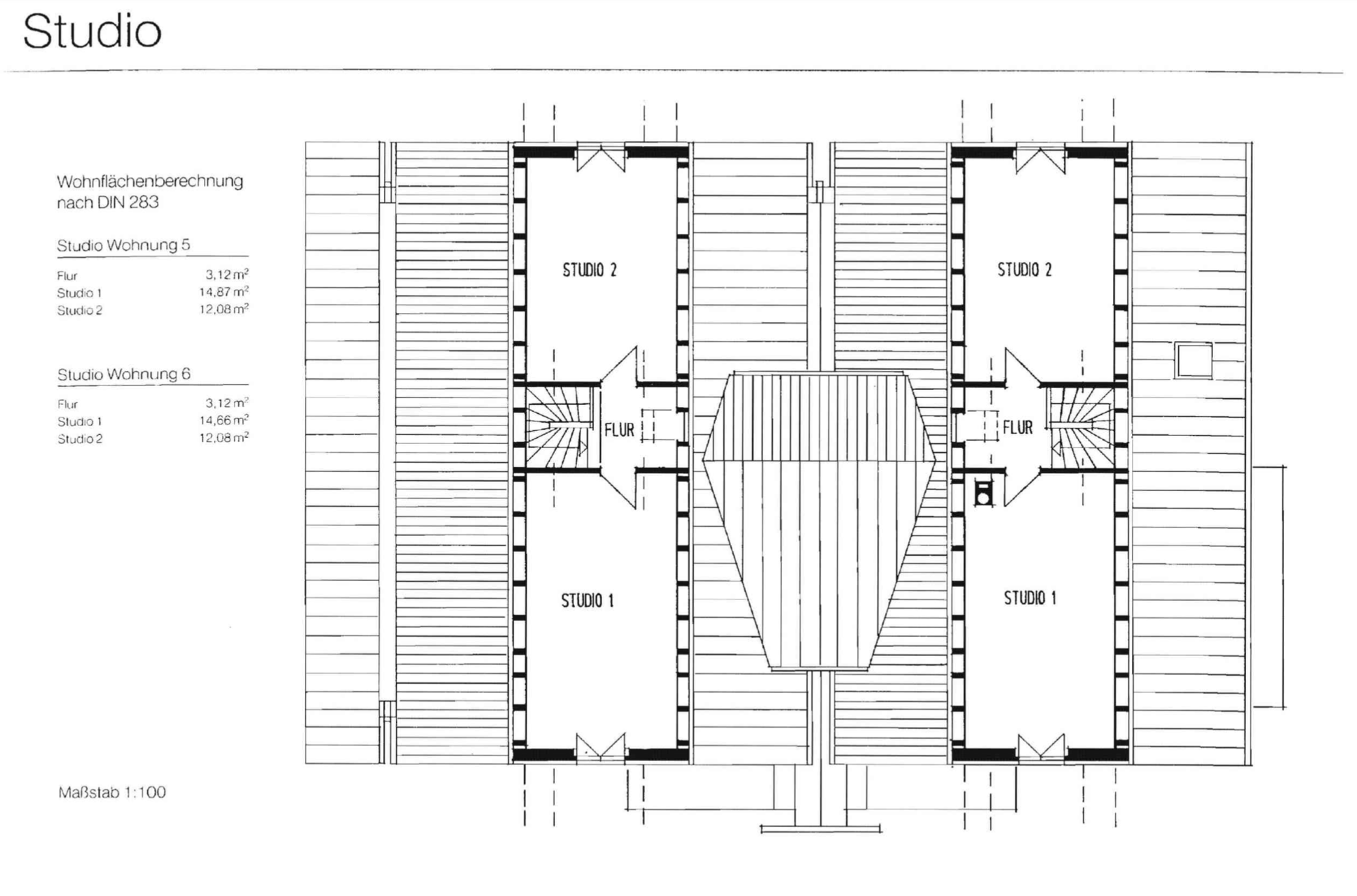
Alle Gewerbeeinheiten (je ca. 92 qm) sind mit repräsentativen Fensterfronten lichtdurchflutet geplant. Die 4 OG-Wohnungen haben eine Wohnfläche von ca. 88 qm. Die 4 DG Maisonette-Wohnungen (ja ca. 130 qm) verteilen sich auf zwei Ebenen mit 4 Zimmer.
Alle Wohneinheiten sind langfristig vermietet und verfügen über einen Nordwest- Balkon zum Innenhof. Die Ausstattung der Wohneinheiten und der Gewerbeflächen ist als gehoben zu bezeichnen.
Die zentralen Gas-Heizungsanlagen sind aus dem Jahr 2015 und werden über das Unternehmen Techem per Fernablesung abgerechnet.
Zur Liegenschaft gehören 5 Flurstücke mit einer Gesamt-Grundstücksfläche von 1.563 qm. Die vermietbare Fläche beträgt 1.063 qm.
Die aktuelle Ist-Jahreskaltmiete liegt bei 67.860€ und kann konservativ gerechnet auf 75-78T€ entwickelt werden.
Kurze Wege und eine gute Infrastruktur zur Innenstadt machen dieses Angebot besonders für Mieter und Ladenbesitzer sehr attraktiv. Hier ist eine Vermietung garantiert.
Durch das Neu geplante AMAZON-Logistik Zentrum, gehört Horn Bad-Meinberg zu den Gewinner des Kreises Lippe. Hier entstehen bis zu 1.000 neue Arbeitsplätze.
BONUS: Bei guter Bonität besteht für Sie die Möglichkeit eine Zinskondition von 0,98% mit einer Laufzeit von ca. 8,5 Jahren zu übernehmen.
Sprechen Sie uns an! Wir helen Ihnen gerne weiter… David Dück: 0173/530 22 94
AUSSTATTUNG
– 36 Zimmer
– 12 Badezimmer
– 8 Balkone
– 14 Kellerräume
– 20 PKW-Stellplätze (Flurstück 849 qm)
– 8 Wohneinheiten
– 3 Gewerbeeinheiten
– Gemeinschafts-Waschkeller
– 2 Gas-Zentralheizungen (Baujahr 2015)
– Fahrradkeller Gemeinschaft
– 8 Gäste-WC
– Badewanne
– Dusche
– Garderobe
– 2 Treppenhäuser
– Waschmaschinen-Anschluss im Keller
– Fenster 2-fach Verglasung
– Kunststoff Fenster
– Bodentiefe Fenster
– Fenster-Rollläden
– Elektro-Unterverteiler
– Freisprechanlage
– Klingelanlage
– Haus-Eingangstür weiß
– Laminat / Fliesen
– Erdgas L Zentralheizung
– Hausverwaltung
– Telekom, Vodafone und VDSL Kabel (250 MBit/s Download / 40 MBit/s Upload)
LAGE
Im Zentrum der Stadt Horn Bad-Meinberg befindet sich dieses Wohn-/Geschäftshaus in guter innerstädtischer Lage für Kunden und Mieter. Mit seinen knapp ca. 18.000 Einwohnern liegt Horn Bad-Meinberg am Rande des Teutoburger Waldes und ist insbesondere durch die Sehenswürdigkeiten Externsteine bekannt.
Das große Angebot an renommierten Unternehmen – Phoenix Contact Blomberg, – Weidmüller Detmold oder auch das Neue Amazon-Logistik Zentrum in Wöbbel sind ein Beweis für die Wirtschaftsstärke der Region Ost-Westfalen Lippe.
Detmold (11km), Paderborn (26km), Hameln (45km), Höxter (35km) und auch Bielefeld (66km) sind gut zu erreichen. Darüber hinaus können Sie von hieraus viele Naherholungsziele auch bequem mit dem Fahrrad oder auch zu Fuß erreichen.
PROVISION
Die Provision, in Höhe von 3,57 % inkl. der gesetzlichen Mehrwertsteuer auf den Kaufpreis, ist mit dem Zustandekommen des Kaufvertrages (notarieller Vertragsabschluss) verdient und fällig. Die Vermittelnden und/oder Nachweisenden (DaVision Immobilien UG und ggf. deren Beauftragter) erhalten einen unmittelbaren Zahlungsanspruch gegenüber dem Käufer (Vertrag zugunsten Dritter, §328 BGB). Die Grunderwerbsteuer, Notar- und Grundbuchkosten sind vom Käufer zu tragen.
Details









